Na część domu z dachem skośnym składa się strefa dzienna, gdzie duże, panoramiczne okna przepuszczają naturalne światło, wpadające do przestronnego salonu. Natomiast kuchnia, perfekcyjnie wkomponowana w otwartą przestrzeń, zachwyca nowoczesnym designem i ergonomicznym układem. Przeszklenia w salonie wychodzą na zaciszny dziedziniec z pięknym ogrodem, zapewniając bliskość z naturą oraz intymność.
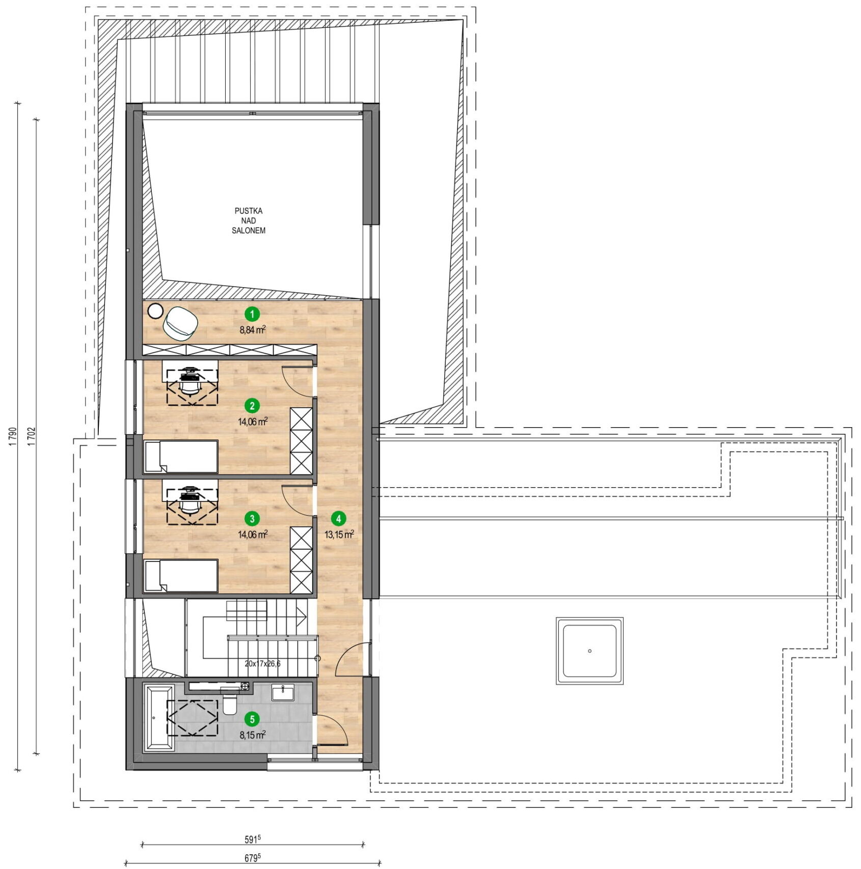
Drugą część domu tworzy dach płaski, obejmujący sferę mieszkalną, składającą się z przytulnych sypialni, z których można podziwiać okoliczną zieleń. Dodatkowa strefa sypialniana jest obecna również na poddaszu.
Na terenie posesji nie zabrakło praktycznego domku dla gości o stylistyce zbliżonej do domu głównego, dzięki czemu całość prezentuje się bardzo spójnie. Budynek ten może być też wykorzystywany w formie gabinetu czy prywatnej przestrzeni do odpoczynku.
Oba obiekty znajdują się na nowoczesnym osiedlu jednorodzinnym, gdzie dbałość o detale architektoniczne idzie w parze z ekologią. W otoczeniu dominuje zieleń, a uliczki zaprojektowano w taki sposób, by zachęcały do spacerów oraz integracji z mieszkańcami.









